Executive Studio Apartment – Should be finished and ready for November 1 2025.
Be the first to live in this brand-new studio apartment located in a beautifully restored historic building!
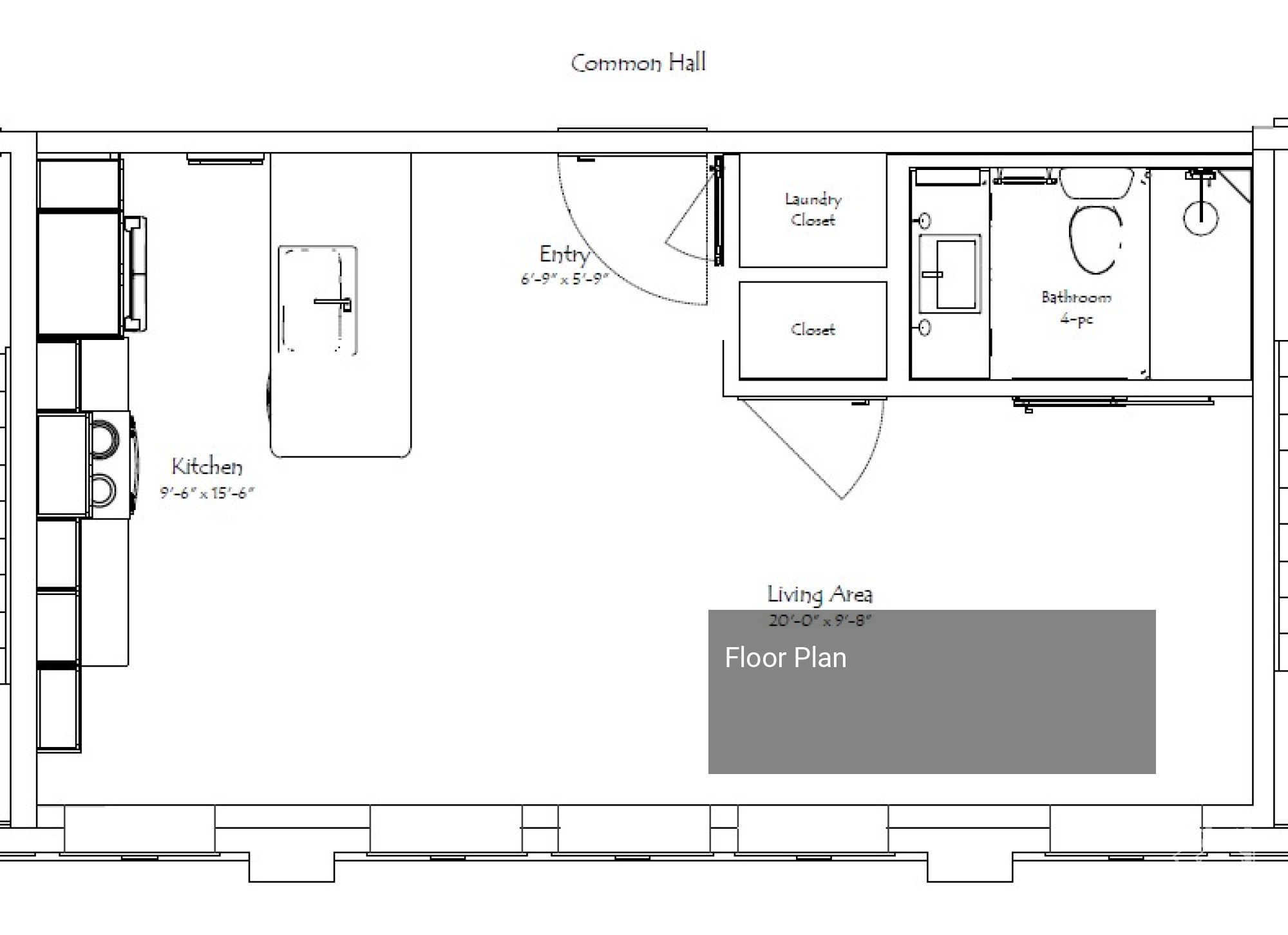
Features:
Spacious open-concept layout
Full kitchen and bathroom
In-unit laundry
Air conditioning
Utilities included in rent ($1,800/month)
Please note:
No elevator in the building
No parking included
Unit is still under construction — photos are renderings and in-progress shots
Applications must be completed and approved before showings
No pets, allowed.
Professionally managed by Jody Workman and Mary Milroy - Hometime
Living Spaces
Room used for groups (Kitchen, Living Room, Family Room)
3 areas
Bathrooms
Bathroom (including ensuite)
1 area
Common Spaces
Space used by many but not for living (Hallway, Stairs, entry, storage)
1 area
Details
Type: Apartment
Security Deposit: $1,800
Initial Term: 12 months
Parking:
Available: Immediately
Utilities:
Power: Included
Water: Included
Sewer: Included
Gas: Included
Pets Not Allowed
Amenities
Fridge
Stove
Dishwasher
Microwave
Air Conditioning
Washer: In-House
Dryer: In-House
Property and Surrounding Area
Property Features
411 3 Avenue
411 3 Avenue
Executive living
Neighbourhood Features
Downtown Neighbourhood
Neighbourhood Features
Downtown Neighbourhood
Telegraph Tap House
South Side Attractions
Lethbridge
South Lethbridge is the heart of our city, with more shopping and amenities than any other side of the city. Home to our hospital, college, Enmax center, city hall, indoor shopping malls and a huge collection of big box stores; this side of town is perfect for young and old alike.
South Side Attractions
Lethbridge
Scenic Drive Dog Run
A well-maintained, off-leash path to let your furry friends run free!
South Side Attractions
Lethbridge
Sugar Bowl
Great place for sledding in the winter or going for a stroll in the summer.
South Side Attractions
Lethbridge
Galt Museum
The Galt Museum holds some of Lethbridge's most interesting pieces of history.
South Side Attractions
Lethbridge
Fort Whoop Up
The replica of an original fur trading post that was originally built in the late 1800's
South Side Attractions
Lethbridge
Lethbridge Attractions
Situated in the South West corner of Alberta with a beautiful coulee and river bottom separating the city in half. Connecting the two parts of the city is the iconic High Level Bridge. This super-sunny city has a massive urban parks system thanks to a ravine created by the local river. Warm Chinook winds keep winter temperatures on the mild side.
The Lethbridge Viaduct, commonly known as the High Level Bridge, was constructed between 1907–1909 at Lethbridge, Alberta, Canada at a cost of $1,334,525.